Udostępnij
swoim znajomym na Facebooku

Data wysylki: 2026-02-06

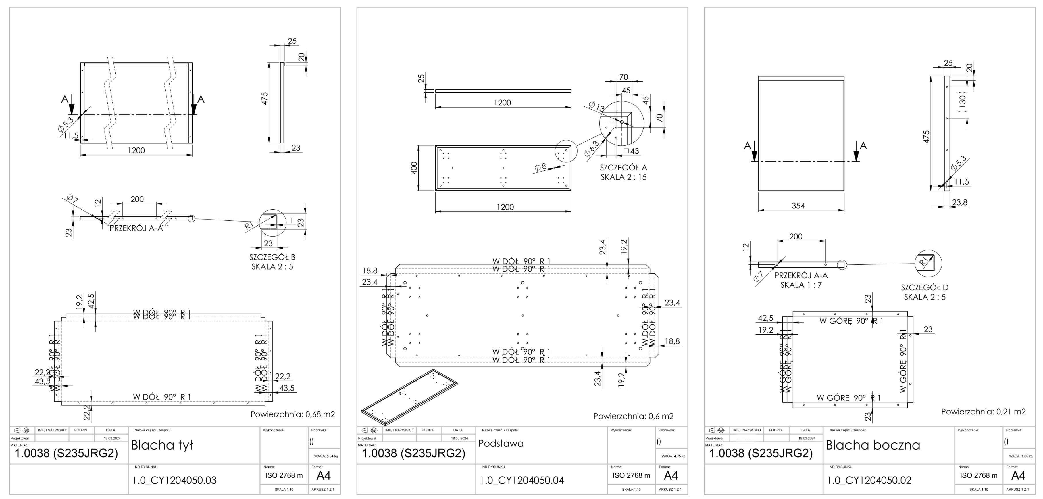
ZLECĘ CIĘCIE I GIĘCIE BLACH OCYNK

Zlecę cięcie i gięcie blach ocynk. Ilość po 50szt z każdego elementu.
Ceny muszą zawierać: Materiał+cięcie+gięcie z blachy ocynkowanej 1,0mm DX51D+Zn275.
Dostawa wyceniona osobno do naszej siedziby. Zlecenie jest powtarzalne na podobne elementy.
Rysunki: link do pliku .
Dokumentacja pdf u Twojego konsultanta cyberbiznes.

Rocznie zużywamy około 20-25 ton tych elementów (różnią się głównie gabarytami od 200mm do 1500mm, blacha zawsze 1,0mm OC)

Nazwa firmy:
***********************
Telefon:
***********************
Telefon:
***********************
Kraj:
Polska

Termin wyszukania: 7 dni

Korespondencja w języku: polski

Chcę wypróbować za darmo.
decodRozkoduj
* Usługa dostępna 30 dni po zatwierdzeniu tej oferty. Oferta dostępna jest wcześniej tylko dla firm, które wykupiły abonament.

Podobne oferty

Data wysylki: 2026-03-26

ZLECĘ CIĘCIE LASEROWE RURY ZE STALI NIERDZEWNEJ

Kraj: Polska

Data wysylki: 2026-03-25

ZLECĘ WYKONANIE FORMATEK Z BLACHY NIERDZEWNEJ

Kraj: Polska

Data wysylki: 2026-03-20

ZLECĘ WYKONANIE URZĄDZENIA

Kraj: Estonia

Data wysylki: 2026-03-19

ZLECĘ WYKONANIE ELEMENTÓW Z PŁASKOWNIKA

Kraj: Polska

Data wysylki: 2026-03-19

ZLECĘ OBRÓBKĘ PROFILI

Kraj: Polska

Data wysylki: 2026-03-17

ZLECĘ CIĘCIE LASEROWE PROFILI

Kraj: Polska

Data wysylki: 2026-03-17

ZLECE PRODUKCJĘ PROFILI

Kraj: Litwa

Data wysylki: 2026-03-16

ZLECĘ SPAWANIE KONSTRUKCJI STALOWYCH

Kraj: Polska

Data wysylki: 2026-03-16

ZLECĘ WALCOWANIE BLACH

Kraj: Polska

Data wysylki: 2026-03-13

ZLECĘ PRODUKCJĘ STELAŻA METALOWEGO MEBLOWEGO

Kraj: Republika Czeska

Data wysylki: 2026-03-12

ZLECĘ PRODUKCJĘ ELEMENTÓW Z BLACHY S355J2+N, 8MM

Kraj: Polska

Data wysylki: 2026-03-12

ZLECĘ WYKONANIE DETALI

Kraj: Polska

Data wysylki: 2026-03-09

ZLECĘ WYPALENIE DETALI Z BLACHY S235

Kraj: Polska

Data wysylki: 2026-03-09

ZLECIMY WYKONANIE ELEMENTU TŁOCZONEGO Z BLACHY

Kraj: Polska

Data wysylki: 2026-03-09

ZLECĘ WYKONANIE ELEMENTÓW Z MOSIĄDZU

Kraj: Polska

Data wysylki: 2026-03-05

ZLECĘ WYKONANIE ELEMENTÓW TOCZONYCH

Kraj: Polska

Data wysylki: 2026-03-05

ZLECĘ WYPALANIE I GIĘCIE DETALI Z BLACHY S235JR

Kraj: Polska

Data wysylki: 2026-03-05

SZUKAM PRODUCENTA WIAT I STOJAKÓW METALOWYCH

Kraj: Finlandia

Data wysylki: 2026-03-04

ZLECĘ WYCIĘCIE DETALI O DŁUGOŚCI DO 6 M

Kraj: Polska

Dodaj darmowe ogłoszenie

Kontakt przez chat