Data wysylki: 2026-01-22
ZLECĘ WYKONANIE ELEMENTÓW STALOWYCH
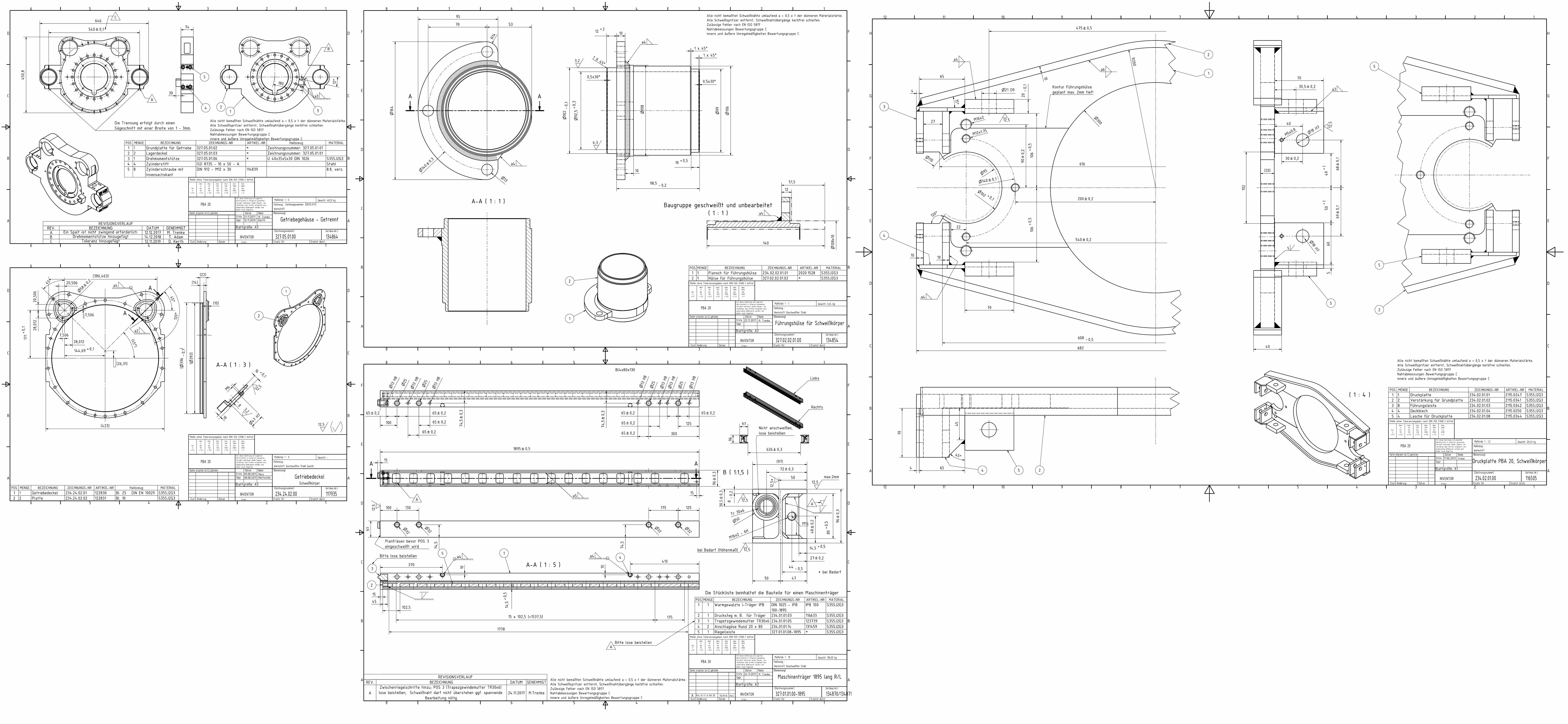
Poszukuje: Wykonanie kompletne z własnego materiału.
Wszystko po 1 sztuce, tylko plik 134854 wykonać 2 sztuki
Rysunki: link do pliku .
Nazwa firmy:
***********************
Telefon:
***********************
Telefon:
***********************
Kraj:
Polska
Termin wyszukania: 7 dni
Korespondencja w języku: polskim, angielskim.
Chcę wypróbować za darmo.
Podobne oferty
Data wysylki: 2025-12-18
ZLECĘ OBRÓBKĘ DETALI Z ALSI10MG ORAZ WYKONANIE PIERŚCIENI ZE STALI P20
Kraj: Polska
Kontakt przez chat




